Office-Bar: gallery 2

With more people working out of the house, what was once a guest bedroom or dungy basement is now a perfect location to bring the office, or TGIF party home.

This office for the Keefes wraps around a corner of the room, starting as a desk, dropping down to bench height at the window, and then up again to make a bookcase with fluted columns.
plan view

Mrs. Keefe needed an area to do geneology. I myself don't believe in genies. This is her work space. Under the desk there is a computer tray, and under that the CPU. The CPU has yet to be placed where it belongs in the hole under and to the left of the printer.
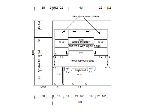
elevation view

The desk top turns along the wall and drops to bench height at the window. The bench has file drawers beneath. It might seem odd that the file drawer is above a smaller drawer and that's because Mrs. keefe wanted it that way. Reaching the file drawers with ease was more important to her.
elevation view

Reaching the end of the window the cabinet run now becomes a bookcase with fluted columns finishing at the same elevation as the uppers above the desk.
3d view

This office was for an electrician who ran the business out of his home. Here is the left side.

Here is the right side.

A basement bar that shows just how much color matters.

A small dry-bar that screams look at me, is out of proportion width to hight, and to the window.

A desk built in a nook of the hallway. Nice touch was making the pass-through to the living room.