Office-Bar: gallery 1

With more people working out of the house, what was once a guest bedroom or dungy basement is now a perfect location to bring the office, or TGIF party home.

This lucky fellow hosts Bronco Sundays. His wife's only concern is that they not spill the salsa on the seat cushions.
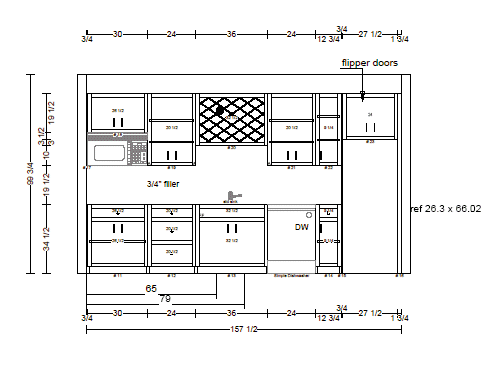
plan view
elevation view

This is Mr. Birdsalls basement. He told me he has a simple test to know when to cut people off; they have to count fish without getting dizzy. He did this install himself and one of the things that he wanted was a place to put his fishtank.
elevation view

Another view of Mr. Birdsalls basement.
plan view

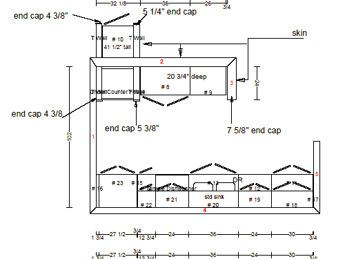
The backbar for the Miller home in Fort Collins...note how the upper and base are turned into the 45 wall.
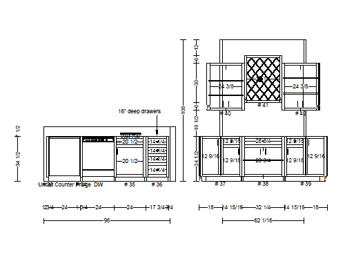
elevation view

The straight on shot showing the staggered cabinets.
plan view

Carla Sebring's bar. To the left is a vault for wine storage.
plan view

A small wet bar in a model home for RCI builders in Loveland, CO.

Another small wet bar located just off the kitchen like in the previous frame...coincidence?

A home office, notice how the arch in the top rail of the open uppers matches the door arch and makes possible the return of the crown on the arch in the center upper.
elevation view