Custom cabinet design

million dollar man, 500+ custom cabinet drawings per year

Project management

build to suit restaurants, up to 10,000 square feet, 3 kitchens, and an elevator

Power user...

TurboCAD, MegaCAD, SilverScreen Solid Modeler, CabinetVision Solid

MS Office tools:

Excel, Word, PowerPoint, Outlook, Access, FrontPage, Custom Style Sheets (css)

Circles and lines...

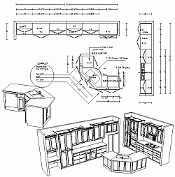
If you haven't noticed, let me point out to you the crown molding surrounding my name in the header. What seems so complicated is just a series of circles and lines. CAD is a tool to make what looks complicated simple. It can drive CNC tooling in a back end application, or be used to render a drawing for presentation to a customer. I first used CAD to draw moldings and make knife templates. Current use is in kitchen design and I have tutorial in Solidbuilder 15, an architectural design program.

Million dollar man...

3.5 years ago I began drawing in CabinetVision Solid for Tharp Custom Cabinets. Just prior to me starting they had purchased the CAD program and needed an operator. With my experience and background I was a highly qualified hire. Tharp has two lines of cabinets. The box line cabinets, located and pulled from a library, with all the cabinets based on 3" increments, and a CUSTOM line. The CUSTOM line cabinets are drawn to measure, all parts sizeable, built according to field conditions and design specification. I worked in the Custom line. I was very productive. My output was over 500 custom kitchens per year with two customer meetings a day. I was thorough, made few mistakes and very profitable. Do the math. What might that translate into profits for you?

A tale of two kitchens...

Popups must be enabled to view pictures

Here are examples of two kitchens built with the same floor plan and the same basic appliance layout. Each kitchen is distinct from the other. The first kitchen has a soffit, a raised back on the island w/ overhang, and a dark finish. The second kitchen has staggered cabinets, single level island top, and a light finish.
The differences are more than finish deep. Several problems in the original design were solved the second time around. To balance the uppers on the sink side, the cabinets to the right and left of the window are equal and tied together with a valance. For symmetry, that same size single-door cabinet was placed on the left end of the wall and filling between a taller, larger, deeper, double-door cabinet with glass doors and wood interior.
In the first kitchen the space to the left of the dishwasher was too large for a single base. The shelf would sag. The remedy was to place a tray cabinet between the sink base and dishwasher, which left room for a 32 1/2" double-door base.
(please click the next button in the picture frame)
On the refrigerator wall side, here again was a situation where the space between the refrigerator and built-in oven was too large for a single base cabinet, unless, instead of a shelf, roll-outs were used. Roll-outs won't sag because they are beefed-up with stiffeners and this was the perfect place next to the oven and across from the stove for pots and pans.
The upper between the oven and refrigerator was also too large for a single double-door cabinet but instead of combination of a double-door and single-door cabinet, it would look better with two single door uppers.

Drawings (pdf files)...

  Download free Adobe Acrobat Reader here

Bonnema 4649 Carlson 2444
Carver 48 COS 3030
COS 6518 COS 6529
COS 8451 Gaddis 32651
Garrison 2110 Glenn 1845
Guitierrez 4291 Harkin 800
Hixon 1900 Hodgdon 3295
IDS 4480 Jensen 18215
Jensen 555 Jewell 2960
Keefe 1820 Knutson 8137
Laine & Stapp 1445 Koentopp 1407
Lorenz 1209 Ludwick 803
Margheim 4868 Mayo 812
Mclaughlin 6660 Mercer 9009
Miller 5948 Mitchell 59
Mosely 1408 Moutain 1395
N.C. 8440 Nutrend 4751
Oneal 31477 Peterson 650
Pichi 5667 Pilkington 1440
Pilkington 2801 RCI 850
Rudkin 811 Sarete 8235I
Sarete 8235II Schroer 39533
Slayt 224 Swan 208
Trumbo 6310 Whittaker 33557