Kitchens: gallery 1

The bread and butter of the business and technically more difficult than ever. Built-in restaurant size appliances, apron sinks and more options then ever.

This is Keira Harkins home in Fort Collins. Based loosely on a shaker design, it has two types of door styles, a flat panel on the uppers and bead-board on the bases. She chose to accent the uppers on the sink side with glass and mullions. It also has an apron sink.
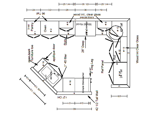
floor plan

Another shaker style kitchen with granite tile tops. The styles on the base cabinets were brought to the floor to accent the larger than usual styles and rails on the doors.

The same kitchen looking at the range side. These doors were specifically made for this job. A very simple, clean and neat design.

This is the Miller home in Fort Collins. The drawers are 5 piece and the combination of appliances and color choice make it one of my favorites.
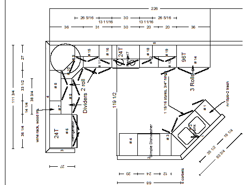
floor plan

A RCI model home in Alford Meadows in Loveland. Hickory cabinets with a natural finish,

This is a Jewell home in Loveland. It has hickory cabinets with a golden pecan finish. There is a valance over the sink and a tall corner cabinet with water-fall glass.

The Knox home in Loveland. The kitchen has toned oak cabinets with a custom stain. The toning knocks down the blunt grain in oak and softens the overall look. Staggering the height and depth of the cabinets in corners and as an element over the stove punches this kitchen out.
floor plan

This gives you an idea of how central a kitchen is to new home design. With open floor plans Kitchens today are part of the living space. Made of oak you can flip back to the previous photo and see what a difference toning can make to soften the graininess of the wood.

Builders get associated with a look. This it the Custom on Site look. Alder, nutmeg stain, cooktop, built-in oven and a large hood. Everythink says, "solid & rustic." Note the glass in the uppers. The doors were installed upside down...don't worry, it was fixed.
floor plan