Kitchens: gallery 3

The bread and butter of the business and technically more difficult than ever. Built-in restaurant size appliances, apron sinks and more options then ever.

IDS spec home. The wood is knotty alder with a burnish.
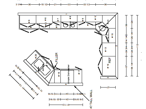
floor plan

Microwave with trim kit, built-in oven and a warming draw.

Island...note the dishwasher. Not a preferable location. I did try to put some space with filler between the sink base and the dishwasher and on the end-cap next to the dishwasher I did beef-up the end panel with a 1 3/4" style.

Alder with golden pecan. The staggered cabinets and valance over the sink give this small kitchen interesting detail. This kitchen also has a very nice working triangle.
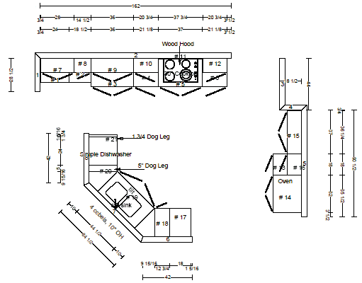
floor plan

Detail on valance. Crown molding is one of the most cost effective ways to accent a kitchen and give it that "high class" look.

Glen Homes of Loveland. Their Parade of Homes model. This is in a patio home and like just about everyone, they too use alder with a nutmeg finish. There is a little bookcase on the end of the island.

This is a COS home, beech-natural. The buyer collects things. He wanted in his kitchen an area to display his stuff out of the way from the working area. The tops of his uppers and the end cabinet of the run suits just that purpose. Check out his bar...GO BRONCOS!
floor plan

This is an interesting house. 4,000 square feet and one bedroom. The kitchen was also a little different. An arched island with all wall finishes in stone. The back wall to the left of the picture was for glass shelves and a liquor display. I just wish he would have invited me to one of his parties.
floor plan

I like this kitchen. I just wish that I had been able to shoot after the owner had moved in. Some would say that it's not good to have wine over the over. I say true, but this is where they wanted it. Beside it looks good and they didn't have room for the wine cellar either. Here is another view looking at the cooktop.