Kitchens: gallery 5

The bread and butter of the business and technically more difficult than ever. Built-in restaurant size appliances, apron sinks and more options then ever.

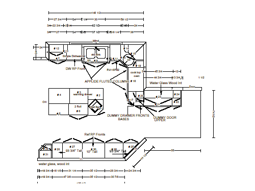
New home for Carla Sebring; the kitchen is hickory with glaze and burnish. The sink base has fluted columns and a custom hood above the cook-top.
floor plan

Here's the view of the opposite wall. A built-in refrigerator as part of a wall of pantry cabinets with a built in microwave. The microwave is still missing the trim kit and the refrigerator its matching wood panels.

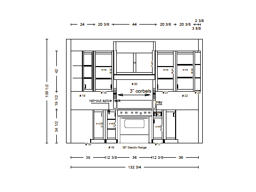
Detail of hood. Note how uppers are balanced by hanging the end cabinet to the right of the hood on the perpendicular run of cabinets. The door next to the glass door is a dummy.
elevation view

A custom hood for Mosley Construction, painted and burnish. The cabinets are kotty alder with cabot walnut.
elevation view

Linda bath home. Columns on both sides of the industrial size stove held stainless steel pot racks. There is custom painted tile. She loves to cook.

Her refrigerator was built into the corner. Along with refrigerators, many people like to put stoves in corners too. They look nice but eat up a lot of space.

Another example of of creating a wall effect by using a built-in refrigerator.

By leaving counter space between the refrigerator and oven it gives you a place to load and off-load from the appliances.

Built-in microwave and oven with counter space on either side and an island. Plenty of work space to cook or eat the take-out.