Kitchens: gallery 6

The bread and butter of the business and technically more difficult than ever. Built-in restaurant size appliances, apron sinks and more options then ever.

Mayo home remodel during kitchen installation. On the left is the refrigerator opening and above that a cabinet to hold a television with inset doors. There is a large odd-shaped island that has an overhang for seating.
floor plan

Detail of the crown molding trim. Since the doors are inset there is no worry about the door striking the molding.

Trumbo kitchen remodel. This is a huge kitchen with a big island. Check out the spice drawer.
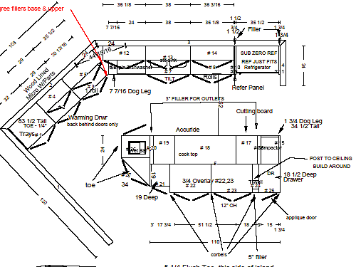
plan view

Small kitchen, I think this is a Berkley Leivestad home.

There is a lot going on in this kitchen. On the left, the corner shelves fit into the window opening. In the center, large pillars and a valance frame the window. The base below is a taller, narrower cabinet with fluted fillers to tie it together.
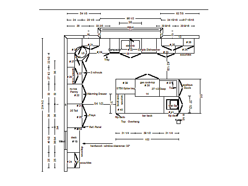
floor plan

Whittaker remodel in Evergreen. The walls were at funky angles, and there was a post in the middle of the room. We handled it all.
floor plan

Oak, often maligned and now adays overlooked. It is still the best wood for the cost. Hard and durable, trends come and go, someday it will be the fashion queen again.

Not only is this an oak kitchen like the last frame, but the range and microwave are the same too. Why do you think that is?

Beech, like oak, hard and durable, less expensive than maple, but like maple doesn't stain well. In Colorado this wood has yet to sell and there has been some failing of finish.