Kitchens: gallery 2

The bread and butter of the business and technically more difficult than ever. Built-in restaurant size appliances, apron sinks and more options then ever.

Just one of many happy owners of a custom Tharp kitchen. He told me that he spends many nights chasing his wife around the island.

Clearly, in Colorado the trend has been in alder with earth-tone shades accented in the paint and tile. This house is a spec home, conservative, but smart when trying to market to the largest common denominator. I also bow to that demand when picking a background color.

This is the island belonging to the kitchen in the privious frame. I alway tried to place some room between the dishwasher and the sink in a setup like this because you have to imagine working at the sink and putting the door to the dishwasher down.

A Berkley Leivestad spec home. They like a clean look and many people have told me that the interiors reminded them of the 70's when most kitchens had a soffit. The soffit works in two ways in this kichen. It serves as a way to light the work surface and cuts down on cabinet expense by using 30" uppers.

This kitchen was built for Ginger Douillard. She had a big family and her #1 priority was a large island top to cook at and seat her children. There is seating for seven. She told me she wanted to be able to watch them do their homework while she made dinner.
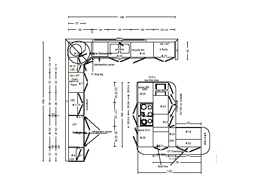
floor plan

This is the kitchen from the previous frame. It is just after installation. This kitchen was made out of European steamed beech. It is an alternative to maple with slight red tinge.

This is an alder kitchen toned in rosewood stain. Check out the custom cutting board. Because of the location of the refrigerator the base next to the refrigerator was pulled off the wall and the upper and one side of the upper corner are 18" deep. A better look.
floor plan

Ed Mirick (BMS) built this house for Bob & Tari Buse in Greeley. They wanted something different so did this light-dark treatment. This is oak with a cutom stain color and tone. It might not be your cup of tea but it sure grabs your attention. The pantry in an inset cabinet.
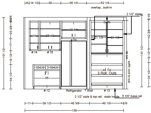
elevation view

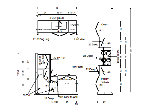
This is the opposite wall. the island comes off this at a 45. The cooktop is balance in the uppers.
floor plan