Kitchens: gallery 4

The bread and butter of the business and technically more difficult than ever. Built-in restaurant size appliances, apron sinks and more options then ever.

I got here just a little to early. The wrapping wasn't off the package yet. Just above the oven you can see a beam. This set the finish height for the soffit and the uppers were built to fit. On the right is a bureau with matching columns in the base and uppers. The island has a black stain, rub through, heavy distress, finish.
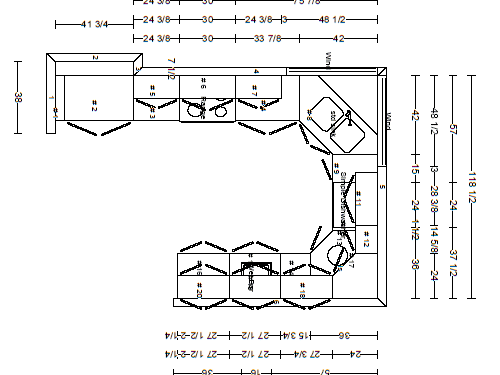
floor plan

This is Rodney Cheeks home in Windsor. He remodeled the kitchen and chose hickory with a light glaze. Off the kitchen there is a sunken dining room and instead of using railing he wanted a display case to act as the barrier.

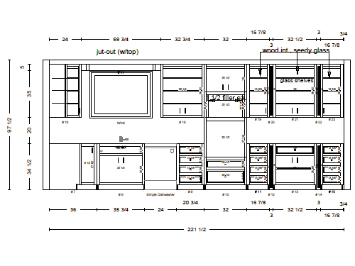
This is the extensive remodel of the Lorenz kitchen. They entertain often. There are four distinct areas : (1)cooking
(2)baking
(3)desktop
(4)wetbar

Juan Gutierrez spec home. Juan was interesting to work with. He did his own design work. This is a house in the Seven Lakes area of Loveland. The drawer eventually made it into the lsland.

This is a small condo remodel in the mountains. It has a galley kitchen. The pantry had a plumbing chase behind it so it was split in two. One side was 12" deep and the other 24". They were brought flush to the face. The customers were very happy with the results.

This isn't a wake, it's a open house for Sovick Homes in Fort Collins. Shaker with slab drawers.
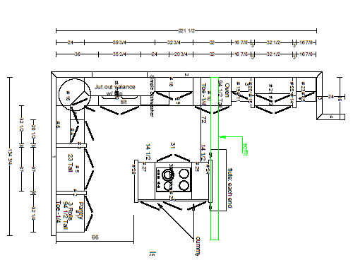
floor plan

Remodel for Will and Coleen Rusch, beech with golden pecan stain. Above the sink base there is pass-through to the dining room.
floor plan

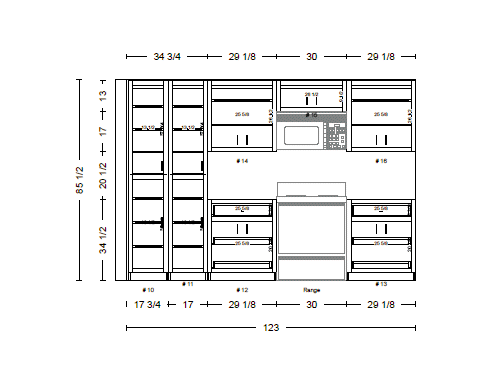
Rob Carlson, Carlson builders built this home. There is a beam above the wine rack that set the soffit height. One thing the owner wanted was to have a microwave at a height her children could reach. You can see the opening in the pantry to the right.
floor plan

A remodel for Judy and Dave Anderson done by Ed Swan. Kitchen, cherry with nutmeg stain, 5-piece drawer fronts.
floor plan